2001/01/15 【アクチュエータ編TOPに戻る】
2-1.脚部の全体像
実際の製作に先立って、先ずは脚部全体のイメージと、各部の構造の検討を進めることにします。
以下の絵は脚部の全体像です。ちょっと大きめの絵なので、ダウンロードに時間がかかるかも知れませんが、お許しを。

全ては田宮模型のウォームギヤボックスの大きさに合わせて考えます。使用するギヤボックスは片脚あたり5個になります。ある程度不自由なく歩けるようにするためには、これくらいの可動部分が必要かと思います。本当は腰の部分にもうひとつ、開脚させるための可動部分が必要になりますが、その辺は追って考えることにしましょう。
①つま先の方向を外側や内側に向けるための可動部分です。腰に取り付けます。腰の部分はまだ細かく考えていないので、省略して書いてあります。それほど大きく動く必要はなく、せいぜい±45度くらい動くようにします。
②太ももを上下させるための可動部分です。①のギヤボックスのシャフトと連結させることにより、上体を支えます。前方向に90度、後方向に20度程度動くようにします。
③ヒザを上下させるための可動部分です。太もも側に取り付けます。前方向に動く必要はありませんが、後方向には135度くらい動くようにします。
④足首を左右方向に傾けるための可動部分です。主に左右の体重移動の時に必要となります。シャフトが中心位置にくるように、台をかませてギヤボックスを固定します。ここはせいぜい±30度くらいの可動範囲とします。
⑤足首を前後方向に傾けるための可動部分です。一番加重が掛かるところで、屈伸運動などをさせるときには一番トルクが必要なところです。±45度くらいの可動範囲とします。
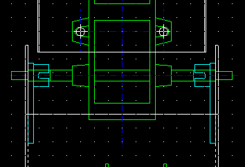
2-2.関節部分の構造
下図は、ヒザの関節部分を正面から見たところの拡大図です。関節部は、ギヤボックスのシャフトの回転を直接利用します。太もも部分にギヤボックス本体を取り付け、スネ部分にシャフトの軸受け(水色の部品、ギヤボックスの付属品)を取り付けます。シャフトにはピンを挿すことができて、軸受け側の溝にピンを合わせることで、空回りを防止することができます。

下図は、ヒザの関節部分を横から見たところの拡大図です。軸受け(水色)はスネ側にしっかりとネジ止め固定するように考えます。図では左側が正面で、右側が背面になります。なので、下図のヒザは時計回りに回転するようにします。ちなみに図中の赤色と黄色の部品は、関節の回転角度を検出するためのセンサーで、ギヤボックス本体に取り付けようと思います。

全ての関節部分は、これと同じ構造で連結させます。なので、ウォームギヤボックスのトルクが、直接そのまんま関節部のトルク(曲げる力)となります。しかし、最終的なロボットの体重や、それに伴いそれぞれの関節で必要となるトルクなど、一切細かいことは考えていません!(素人なもので ^ ^; )とりあえず作り、問題が起きたらその時点で考えるのが、この工作室の姿勢です...。
2-3.ギヤボックスの取り付け部分
ウォームギヤボックスには、左右2箇所のネジ止めしか出来ません。なので、下図のような力が加わった場合、土台部分の強度が弱いとネジ止め部分を中心として後方(モーター部分)が持ち上がってしまいます。すると、脚部全体の遊びが多くなり、強度としても問題になりそうです。(左の図)
![]() |
⇒ |
![]() |
後方(モーター部分)も土台に固定できるように何らかの工夫が必要になると思います。例えば、バンドで土台とモーター部分を結んでしまうとか。(右の図)
モーターのシャフト自体にも遊びがあるので、モーター取り付け自体にぐらつきがないように考えましょう。そうでないと、5箇所の関節の遊びが合計されて、グニャグニャな脚部になってしまいそうです。